SUMAR/HEILSÁRSHÚS
Hér að neðan gefur að líta sýnishorn af þeim sumarhúsum sem Trésmiðja Heimis hefur byggt síðan 1988.
Húsin eru sérsmíði og erum við með mikinn fjölda teikninga sem kaupendur geta nýtt sér.
Einnig erum við með teiknara á okkar vegum sem getur teiknað draumahúsið þitt
– ALVEG EFTIR ÞÍNUM ÓSKUM !
HÚSIN OKKAR HENTA EINNIG VEL SEM ÍBÚÐARHÚS.
Eru þá húsin aðlöguð að byggingarreglugerð sem gildir um byggingu slíkra húsa. Þá er jafnframt hægt að taka á þau íbúðalán.
hús 1
- 107m2 að grunnfleti auk 55m2 efri hæðar
- 3 svefnherbergi
- L-laga stofa og eldhús í opnu rými
- 2 baðherbergi
- Kvistur á þaki
- 55m2 bílskúr
- Tengibygging milli húss og bílskúrs
- 9m2 útigeymsla.
hús 2
- 85m2 að grunnfleti á einni hæð
- 2 stór svefnherbergi
- Stofa og eldhús í opnu rými
- Rennihurð úr stofu
- Baðherbergi
- Þak lengt að hluta til að búa til skyggni
hús 3
- 91m2 hús auk 45m2 efri hæðar
- 3 svefnherbergi
- L-laga stofa og eldhús í opnu rými
- Baðherbergi
- Útskotsgluggi í eldhúsi
- 2 kvistar á þaki
hús 4
- Aðalhús (hægra megin á mynd) 55m2 að grunnfleti auk 25m2 efri hæðar
- 2 svefnherbergi
- Stofa og eldhús í opnu rými
- Baðherbergi
- 37m2 gestahús við hlið aðalhúss
hús 5
- 100m2 að grunnfleti á einni hæð ásamt 10m2 útigeymslu undir einu þaki á yfirbyggðri verönd
- 1-2 svefnherbergi
- Stór stofa
- Eldhús
- Setustofa
- Baðherbergi
hús 6
- 185m2 að grunnfleti auk 120m2 efri hæðar
- 4 svefnherbergi
- Stofa og eldhús í opnu rými
- 2 baðherbergi
hús 7
- 157m2 sumarhús að grunnfleti á einni hæð.
- 4 svefnherbergi
- Stofa
- Sjónvarpsstofa
- 2 baðherbergi
hús 8
- 57m2 sumarhús að grunnfleti auk 26m2 efri hæðar
- 2 svefnherbergi
- Eldhús og stofa í opnu rými
- 1 baðherbergi
- Kvistur á þaki
hús 9
- 98m2 hús auk 45m2 efri hæðar
- 3 svefnherbergi
- L-laga stofa og eldhús í opnu rými
- Baðherbergi
- Útskotsgluggi í eldhúsi
- 2 kvistar á þaki
hús 10
- 178m2 sumarhús að grunnfleti, á einni hæð
- 2 stór svefnherbergi
- Stór stofa og eldhús í opnu rými
- 2 baðherbergi
- Gestahús og bílgeymsla við hlið aðalhúss
hús 11
- 75m2 að grunnfleti auk 45m2 efri hæðar
- 3 svefnherbergi
- Stofa og eldhús í opnu rými
- Baðherbergi
- Kvistur á þaki
- 5 m2 útigeymsla við hlið húss
- 32m2 gestahús við hlið aðalhúss
hús 12
- 85m2 að grunnfleti auk 45m2 efri hæðar
- 4 svefnherbergi
- Stór stofa og eldhús í opnu rými
- Baðherbergi
- Kvistur á þaki
- Útigeymsla við hlið húss
- Stórir sólpallar umhverfis húsið eru smíðaðir af Trésmiðju Heimis
hús 13
- 72m2 að grunnfleti auk 35m2 efri hæðar
- 3 svefnherbergi
- Eldhús og stofa í opnu rými
- Baðherbergi
- Kvistur á þaki
hús 14
- 90m2 að grunnfleti auk 45m2 efri hæðar
- 2 svefnherbergi – möguleiki að hafa þau 3
- Stofa og eldhús í opnu rými. Stofa í vinkil.
- Baðherbergi
- 2 kvistar á þaki
- 24m2 aukahús við hlið hús sem telur bað, herbergi og gufubað. Bílskúr undir öllu aukahúsinu.
hús 15
- 150m2 sumarhús að grunnfleti á einni hæð
- 4 svefnherbergi
- Stofa
- Eldhús
- 2 baðherbergi
- 9m2 útigeymsla
- Útisturta
hús 16
- 92m2 sumarhús að grunnfleti auk 30m2 efri hæðar
- 3 svefnherbergi
- Eldhús og stofa í opnu rými
- 2 baðherbergi
- Kvistur á þaki
- Útskotsgluggar í stofu og eldhúsi
hús 17
- 180m2 að grunnfleti auk 100m2 efri hæðar. Húsið er steinsteypt og klætt að utan
- 5 svefnherbergi
- Stofa
- Eldhús
- Baðherbergi
- Kvistar á þaki
hús 18
- 188m2 sumarhús að grunnfleti, á einni hæð
- 3 svefnherbergi
- Eldhús
- Stofa
- 3 baðherbergi
- Sauna
- bílskúr
HÚS 19
- 83m2 að grunnfleti auk 40m2 efri hæðar
- 2 svefnherbergi
- Eldhús og eldhús í opnu rými
- 2 baðherbergi
HÚS 20
- 60m2 að grunnfleti auk 30m2 efri hæðar
- Útveggir 3m á hæð og lofthæð neðri hæðar 2,5m
- 2 svefnherbergi
- Eldhús og stofa í opnu rými
- Baðherbergi
HÚS 21
- 65m2 að grunnfleti auk 30m2 efri hæðar
- 2 svefnherbergi
- Stór stofa og eldhús í opnu rými
- Baðherbergi
- Kvistur
HÚS 22
126m2 að grunnfleti auk 35m2 efri hæðar
* Stofa
* Eldhús
* 3 svefnherbergi
* 2 baðherbergi
* Þvottahús
* 30m2 aukahús sem telur: sauna, geymslu, baðherbergi og wc
hús 23
FRÍSTANDANDI LEIK- OG KENNSLUSTOFA:
- Hagkvæm og fljótleg lausn á húsnæði fyrir grunn- og leikskóla.
- Húsin eru byggð við verkstæði, kláruð þar að utan sem innan, tilbúin til flutnings og tengingar við vatn, rafmagn og frárennsli.
- Hvert hús er hugsuð sem ein grunn- eða leikskóladeild og möguleiki er á að tengja saman húsin eftir þörfum.
- Hægt er að fá húsin í stærð sem hentar hverjum og einum og geta verið flutt hvert á land sem er.
- Húsin eru vönduð framleiðsla og uppfylla allar kröfur til starfsemi grunn- og leikskóla.
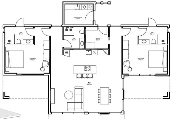
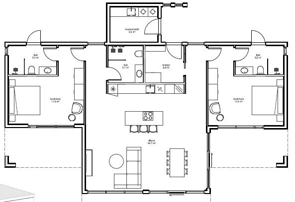
HÚS 24
- 139m2 að grunnfleti á einni hæð
- Stórt alrými; stofa og eldhús
- 2 stór herbergi
- 3 baðherbergi
- þvottahús / geymsla
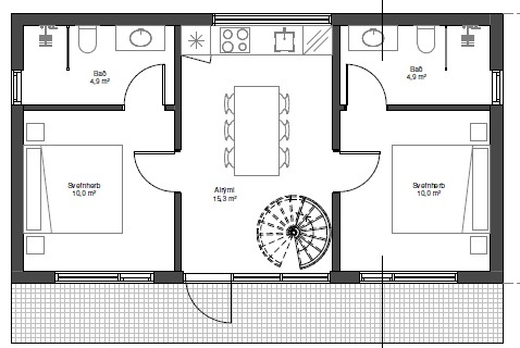
HÚS 25
- 80m2 á tveimur hæðum að hluta.
- Neðri hæð:
- 2 svefnherbergi
- Eldhús og stofa í opnu rými
- Baðherbergi
- Efri hæð:
- Stór stofa þaðan sem utangengt er á stórar svalir
